Panteón

En la antiguedad clásica, conjunto de todos los dioses, o templo destinado a albergar el culto de los mismos.

En épocas altomedievales, las élites sociales comienzan a ubicar sus enterramientos en las iglesias por ellos fundadas, en un principio, en edificios anexos, a imitación de los situados en las villas de los patricios romanos (mausoleo de Teodorico en Rávena, de Gala Placidia junto a Santa Cruz, en la misma capital). Después, con el auge de los enterramientos "ad sanctos", creyéndose autorizados a causa de su posición social, comienzan a hacerlo en las naves de los templos, generalmente frente al altar, lo que motivó la prohibición de esta práctica por parte de las autoridades eclesiásticas. Para burlar esta prohibición, al tiempo que se cumplía el anhelo de la sepultura lo más próximos posible a los cuerpos santos, comienzan a elevarse en el interior de las iglesias, pero materialmente independientes de las mismas, adículos, anejos o contraábsides, que cumplen esta función funeraria, y, a veces, incluso cultual.

Vista general de la basílica de Santa María, con el recinto del panteón al fondo. Interior del panteón de la basílica de Santa María, con los sepulcros originales, de Alfonso II y Bertinalda. Ubicación del panteón en la basílica de Santa María.

Pilar

Al igual que la columna, es un elemento estructural de soporte vertical de los edificios. A diferencia de aquella, cilíndrica, el pilar presenta forma prismática, lo que lo hace más versátil debido a su economía de recursos y facilidad de construcción. Se denomina pilastra, cuando su sección no es completa, adosándose a un muro.

En el arte Clásico grecorromano, se aplicaron al pilar las mismas reglas canónicas que a la columna. En los pilares de los edificios del ciclo asturiano conservados se utilizó el orden toscano, el más sencillo, y muy empleado en la arquitectura doméstica romana.

Pilar prismático de la iglesia de Santullano. Elementos. El capitel-imposta es intercambiable.
Disposición de los pilares en la iglesia de Santullano.

Pinturas

Los edificios del ciclo arquitectónico altomedieval asturiano se encontraban totalmente enlucidos, y generalmente pintados, tanto exterior como interiormente. Tanto los estilos como las técnicas utilizados se corresponden con la tradición romana clásica.

Así, se utilizan arquitecturas de edificios, en perspectiva ilusionista, cuadros figurativos enmarcados por motivos geométricos, y series repetidas de éstos, figurando motivos arquitectónicos o decorativos convencionales, como casetones, zócalos marmóreos, etc.

Hoy por hoy aún no sabemos bien si junto a estos motivos anicónicos heredados del repertorio romano, coexistieron desde el principio representaciones figurativas. Las primeras que se conocen son las de San Miguel de Liño (cuyos principales restos se ubican en el tramo conservado de la nave lateral sur). El estilo de todas ellas se detecta igualmente en el repertorio figurativo de la pintura de prestigio ubicada en las grandes villas de las provincias atlánticas, y sus herederos directos son las representaciones figurativas de los Beatos de los siglos X y XI.

Arquitecturas fingidas de tradición pompeyana romana. Motivos geométricos decorativos en techos abovedados, de tradición musivaria romana. Representaciones antropomorfas en la iglesia de San Miguel de Liño: escena del Apocalipsis de Juan. Decoración pictórica de la nave lateral de la iglesia de Santullano. Realce pictórico del fondo de los medallones de la sala noble de Santa María de Naranco.

Pórtico

A partir del "Nártex" de la arquitectura paleocristiana, en la Alta Edad Media se desarrollan diversas tipologías de pórtico, situado a la entrada de las iglesias, con el fin de albergar a los penitentes o catecúmenos, o a la altura del presbiterio, como acceso para el clero celebrante.

Normalmente consta de un acceso central, sobre el que, en las iglesias más importantes, se sitúa una tribuna, a la que se accede desde sendas escaleras situadas en sendas cámaras laterales.

Pórtico tripartito exento, típico de los edificios  funcionales de la arquitectura religiosa del Reino de Asturias. Pórtico tripartito integrado en el cuerpo del edificio, típico de los edificios monumentales de la arquitectura religiosa del Reino de Asturias. Ubicación de los porticos en la iglesia de Santullano.

Presbiterio

(lat. Presbyterium). En la arquitectura Paleocristiana se designaba como presbiterio el gran espacio, generalmente en hemiciclo, situado al fondo de la nave central, en el que se ubicaba el altar, resultando indistinguible del ábside.

Posteriormente, con la multiplicación de los altares y la individualización de los mismos en capillas, debido al influjo de la arquitectura monástica, el espacio del presbiterio pasó a estar situado en toda la superficie del templo inmediata a las capillas de los altares, separada de éstas, y de las naves destinadas al pueblo mediante canceles de piedra o madera. En el presbiterio se reunían los sacerdotes durante la celebración de la misa, y era el espacio litúrgico reservado a la circulación del clero por el que se movían los clérigos asistentes a las ceremonias celebradas en los santuarios.

En el Reino de Asturias, en las iglesias más importantes, el lugar del presbiterio se monumentalizó mediante la individualización arquitectónica del mismo, creando un transepto o nave transversal, interpuesto entre los altares y las naves de la basílica, para facilitar la circulación del numeroso clero que participaba en las ceremonias de las Fiestas Mayores que se celebraban en ellas.

En otros casos se monumentalizó el presbiterio sin necesidad de creación de una sala específica, simplemente destacando en altura el espacio inmediato al santuario, como ocurre en Santa Cristina de Lena y, probablemente, ocurría en la iglesia de San Juan Bautista de Oviedo, perteneciente al monasterio homónimo donde el presbiterio elevado se superponía a una probable cripta martirial, dotada de deambulatorio y camarín funerario (confessio), apareciendo esta tipología, por tanto, ligada a templos monásticos.

En el resto de las iglesias, simplemente se realizaba una separación, mediante canceles, entre el lugar destinado a los fieles, en la nave, o naves, y el presbiterio, ubicado ante el altar, reservado a la circulación del clero asistente a la ceremonia.

San Salvador de Priesca. Presbiterio ubicado en el último tramo de la nave, separado de ésta por canceles. San Julián de los Prados. Presbiterio ubicado en el interior de transepto concebido arquitectónicamente como ámbito yuxtapuesto al cuerpo de naves. Santa María de Bendones (Oviedo, ante 896). Edificio monástico de nave única. Posible presbiterio delimitado por canceles en el extremo E de la misma. San Juan Bautista de Oviedo (desaparecida). Probable presbiterio elevado sobre la nave única del templo monástico, sobre cripta martirial semisubterránea. Planta original de San Miguel de Liño, donde se muestra el presbiterio.

Proporción Áurea

(lat. proportio-onis, aureus-a-um). Dícese de la proporción entre magnitudes descubierta en la Antigüedad (Euclides, circa 300 b. C), denominada «teorema de la media y extrema razón», y que geométricamente se obtiene por comparación entre el lado de un cuadrado y el del rectángulo obtenido mediante la proyección de la semidiagonal de dicho cuadrado, verificándose que la proporción obtenida de la razón entre el lado de los mencionados cuadrado y rectángulo, es la misma que la obtenida de la razón entre la suma de éstos y el lado del cuadrado inicial.

Dicha proporción, que, como es sabido, se encuentra presente en numerosas formas de la naturaleza, parece haberse adoptado en las artes -especialmente en la arquitectura y en la escultura- ya desde tiempos antigüos, siendo detectable en monumentos griegos y romanos. La razón de su empleo en el diseño de los edificios estriba en la inconmensurabilidad (dificultad de medida), de la cifra obtenida de la misma (número áureo), ya que esta característica se consideraba propia de la divinidad, y cualquier obra elaborada en función de la misma estaría dotada de las cualidades de «Euritmia» y «Armonía» propias de la naturaleza, esto es, de la Creación.

En el Reino de Asturias, dichos preceptos filosófico-matemáticos, que regían la construcción de edificios desde la Antigüedad, eran bien conocidos, de modo que pudieron ser empíricamente llevados a la práctica de modo sencillo aplicando el método de deducción geométrica más arriba descrito.

De este modo, se ha detectado la utilización de dicho método geométrico en la obtención de la planta de edificios como San Julián de los Prados (Santullano), o Santa María de Naranco, así como en los alzados de los ábsides centrales de templos basilicales, como el ya mencionado de San Julián de los Prados, o la iglesia propia de los Santos Pedro y Pablo, junto al río Trubia (actual de san Pedro de Nora), así como en la proyección en alzado del mencionado edificio sagrado de Naranco

Proporción Áurea: obtención geométrica y formulación matemática básica. Proporción Áurea: comparación dimensional entre criterios geométricos de proporción. Proporción Áurea: Determinación geométrica de la articulación en planta de Santa María de Naranco. Proporción Áurea: Determinación geométrica de la articulación en alzado de Santa María de Naranco. Proporción Áurea: Determinación geométrica de la articulación en planta de San Julián de los Prados Proporción Áurea: Determinación geométrica de la articulación en planta de Santa Cristina de Lena
Proporción Áurea: Determinación del alzado del ábside central de la iglesia de San Julián de los Prados. Proporción Áurea: Determinación del alzado del ábside central de la iglesia de San Pedro de Nora.

Proporción Cierta

(lat. proportio-onis, certus-a-um). Dícese de la proporción obtenida a partir de la razón de los lados de un cuadrado, que es igual a la unidad (de ahí el adjetivo de "cierta"). Por extensión, los autores la aplican también a la proporción obtenida de la razón entre el lado de un cuadrado y su diagonal, que resulta un número irracional (inconmensurable o difícilmente medible). Aunque las propiedades del cuadrado son conocidas con mucha anterioridad (Babilonia, Egipto), ambos sistemas de proporciones fueron enunciados por Euclides (Elementos, circa 300 b. C), pasando al repertorio de los arquitectos clásicos, griegos y romanos.

En el Reino de Asturias, dichos preceptos filosófico-matemáticos, que regían la construcción de edificios desde la Antigüedad eran bien conocidos, de modo que pudieron ser empíricamente llevados a la práctica de modo sencillo, aplicando el método de deducción geométrica.

Así, se ha detectado la utilización de dicho método geométrico en la obtención de la planta de edificios como Santa María de Bendones, o de la antigua iglesia de los Santos Pedro y Pablo cerca del río Trubia (Actual San Pedro de Nora, Las Regueras). La proporción simplemente basada en el cuadrado se generaliza en tiempos de Alfonso III, estando presente en la planta y alzados de la torre de San Miguel, y Cámara Santa-la simple en su santuario, y la derivada de la proyección de su diagonal en el alzado de su nave-, al igual que en el alzado de la nave central de la ya mencionada iglesia de San Pedro de Nora, y en el templo basilical de San Salvador de Valdedios (Villaviciosa)

Proporción Cierta: obtención geométrica y formulación matemática básica. Proporción Cierta: comparación dimensional entre criterios geométricos de proporción. Proporción Cierta: Determinación geométrica de la articulación en planta de Santa María de Bendones. Proporción Cierta: Determinación geométrica de la articulación en alzado de San Pedro de Nora.
Proporción Cierta: Determinación de la planta de la Cámara Santa de San Salvador de Oviedo. Proporción Cierta: Determinación del alzado de la Cámara Santa de San Salvador de Oviedo. Proporción Cierta: Determinación del alzado de la nave central de San Pedro de Nora.

Proporción Cuadrática

(lat. proportio-onis, quadratus-a-um). La proporción «a cuadrado» (quadrato more), es aquella que se obtiene a partir de la división, o múltiplo del lado de un cuadrado (polígono cuadrangular de lados iguales), obteniéndose plantas y alzados múltiplos racionales (conmensurables) del cuadrado de partida

Ya Vitrubio en su obra "Los Diez Libros de Arquitectura" propone, al referirse al trazado de la casa romana, un atrio cuadrado cuyo alzado sea 2/3 del lado de la planta, es decir, utilizando para la determinación de la altura del atrio un submúltiplo exacto del lado del cuadrado de la planta, obtenida, en este caso, a partir de una «matriz modular impar»

En el ámbito del Reino de Asturias, dentro de los técnicas geométricas de proyecto utilizadas en la arquitectura monumental conservada, la «Proporción a cuadrado» es la que se basa en procedimientos de más sencilla aplicación, encontrándola presente en la definición de las plantas y alzados generales de edificios señeros de la arquitectura del "Prerrománico Asturiano", como Santa María del Rey Casto (panteón real), San Miguel de Lliño, y San Salvador de Valedediós (Boides, Villaviciosa)

Proporción Cuadrada: obtención geométrica y formulación matemática básica. Proporción Cuadrada: Determinación geométrica de la articulación en planta de Santa María de Oviedo (panteón real). Proporción Cuadrada: Determinación geométrica de la articulación en alzado de Santa María de Oviedo (panteón real). Proporción Cuadrada: Determinación geométrica de la articulación en planta de San Miguel de Lliño. Proporción Cuadrada: Determinación geométrica de la articulación en alzado de San Miguel de Lliño.

Proporción Exacta

(lat. proportio-onis, exactus-a-um). Dentro del caso general de «división euclídea de un segmento en dos partes (subsegmentos) desiguales», si partimops de la premisa de que, aplicando dicha división a un cuadrado de lado "L", resultando dos segmentos desiguales "a" (menor) y "b" (mayor), de tal modo que se verifique que la longitud del segmento "b" sea la misma que la de la proyección de la cuerda "c" -trazada desde el punto de división al vértice opuesto del cuadrado-, en la parte que exceda a la longitud del lado del mismo, se verificará entonces que la mencionada cuerda "c" está en proporción doble respecto del segmento "b", es decir que c = 2b.

Con la premisa dada y mediante cálculo pitagórico, se deduce que la longitud del segmento "b" es igual a la división del lado "L" del cuadrado propuesto entre el número irracional "raiz cuadrada de 3", es decir, b = L/(3^1/2)

Al referirnos a este caso particular de la división euclídea, podrían resultar de aplicación otras denominaciones para el concepto, pareciéndonos igualmente adecuada la de «proporción equidistante», al tener la idéntica longitud y equidistancia los dos segmentos iguales "b" que componen la dimensión total de la cuerda "c", respecto del vértice superior del cuadrado de referencia

En el ámbito del Reino de Asturias, esta propiedad euclídea se utiliza en el trazado de la planta del importante templo ovetense de los Santos Julián y Basilisa (Santullano), edificado por Alfonso II hacia 822 (GARCÍA DE CASTRO, 2015), en el interior de la finca del palacio real, a la distancia de un estadio del mismo

Como conclusión, cabe decir que constatación de la aplicación de este caso particular de «división euclídea de un segmento» al proyecto de la planta de la iglesia de Santullano constituye, en nuestra opinión, prueba segura de que en el Reino de Asturias operaban talleres arquitectónicos capaces de aplicar pautas proyectuales avanzadas basadas en la geometría, teoría de proporciones y teoría de los números contenidos en los «Elementos de Matemáticas» de Euclides, con preferencia -como hemos visto a lo largo de todas estas fichas-, a la deducción de las plantas a partir de un cuadrado, así como a la utilización de los números «inconmensurables» (irracionales), obtenidos por aproximación, como magnitud de partida para la mencionada «división euclídea» y sistema de proporciones observables en los edificios, derivados de su aplicación.

Proporción Exacta (equidistante): explicación geométrica. Proporción Exacta: obtención matemática de la magnitud «b» y representación cartesiana del punto origen del trazado de la cuerda «c»
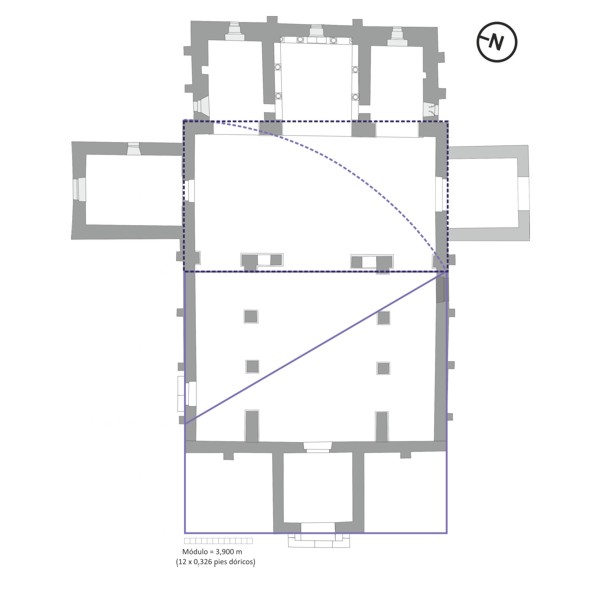
Proporción Exacta (equidistante): explicación geométrica de la obtención en planta del transepto de la iglesia de Santullano. Proporción Exacta: parámetros dimensionales de la representación anterior Proporción Exacta: deducción geométrica de un primer cuadrado a partir del rectángulo obtenido por equidistancia. Proporción Exacta: obtención geométrica de un «rectángulo áureo» por proyección de la semidiagonal del cuadrado obtenido en el paso anterior, que determina la longitud del cuerpo absidal Proporción Exacta: deducción de un segundo cuadrado que determina la dimensión del santuario central.

Proporción Pitagórica

(lat. proportio-onis, pitagoricus-a-um; relativo a Pitágoras, a sus estudios matemáticos, en este caso). La proporción pitagórica, o basada en el conocido como “triángulo de Pitágoras” (o “triángulo perfecto”, de proporciones 3-4-5) a partir de un cuadrado cuyo lado se divide en función de una “matriz modular impar” –siempre de múltiplos de tres-, genera el referido triángulo, que regirá el sistema proporcional en planta y alzado del edificio proyectado, a través de las relaciones que se establecen entre sus catetos mayor y menor, y la hipotenusa del mismo.

La aplicación de este sistema de proporciones, comparada con los otros utilizados por los talleres de la arquitectura del Reino de Asturias, sirve para generar los edificios de mayores dimensiones, tanto en planta como en alzado (ver comparación entre sistemas ´geométricos de proporción: “Pitagórica”,” Áurea”, “Cierta” y “Cuadrática”).

En los edificios del Reino de Asturias, este procedimiento de traza geométrico se utiliza, en exclusiva, en el proyecto general, en planta y alzado, de la fuente de Foncalada (Oviedo); asimismo resulta observable en el trazado del ábside de San Tirso (Oviedo), donde además, muy probablemente, determinó el alzado del cuerpo constructivo antepuesto al oeste del mismo. Igualmente, se encuentra presente en la configuración interior de los templos basilicales del Reino, donde sirve para articular la traza de los tramos de arquería. También, en combinación con la Proporción exacta y la Proporción Áurea, la triangulación constituye el procedimiento de articulación geométrica de uno de los principales templos conservados del Prerrománico Asturiano: la iglesia basílica de los Santos Mártires Julián y Basilisa (Santullano), cercana al palacio real ovetense. Por último, el triángulo perfecto de dimensiones 12 x 16 x 20 pies, determina las dimensiones, tanto en planta como en alzado, del ábside central (del que también se puede obtener su alzado por "Proporción áurea") de la iglesia de Santa María de Bendones.

Proporción Pitagórica: obtención geométrica y formulación matemática básica. Proporción Pitagórica: comparación dimensional entre criterios geométricos de proporción. Proporción Pitagórica: Determinación geométrica de la articulación en planta y alzado de la fuente de Foncalada. Proporción Pitagórica: Determinación geométrica de la articulación en planta de San Julián de los Prados. Proporción Pitagórica: Determinación geométrica de la articulación en alzado de San Julián de los Prados. Proporción Pitagórica: Determinación geométrica de la articulación en alzado de Santa María de Bendones.