Castillo-fortaleza de Alfonso III

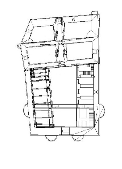
Planta baja

Con su entrada orientada hacia la actual plaza de Porlier, donde se ubicaba -según los cronistas de época moderna que allí la vieron situada-, una inscripción conmemorativa de la fundación por parte de Alfonso III y su esposa Jimena, se penetraba en un estrecho patio, donde se ubicaban, posiblemente, unas caballerizas, y, probablemente, las escaleras de acceso a una serie de habitaciones situadas en el lateral E.

Sucedía al patio de la entrada otro, rectangular, que contenía al O, posiblemente, una serie de dependencias, al N, la entrada a los calabozos, que eran cuatro, según se conoce por testimonios contemporáneos. En el lado E se situaba la escalera de acceso a los pisos superiores de la torrre, donde, según Jovellanos, se situaba otra inscripción, apócrifa, conmemorativa de la apertura de una puerta.

Distribución hipotética de la planta baja.

Planta principal

A este nivel del primer piso, se situaba la planta principal de la torre, y, según todos los indicios proporcionados por el dibujo de la planta conservado, anterior a su voladura por parte de los franceses del general Bonet, una serie de aposentos situadods en el lateral E, a los que se accedía desde las escaleras situadas en el antepatio.

Existen testimonios de época moderna y contemporánea, anteriores a su destrucción, en el castillo existían un salón, y dos estancias, que se destinaban a alojar a los presos "notables" (es decir, represaliados políticos), las cuales, en nuestra opinión, tuvieron que situarse en esta planta principal, a cuya entrada, además, hemos situado un zaguán, que albergaría la sala de armas y el cuerpo de guardia.

Distribución hipotética de la planta principal.

Ronda almenada

Con acceso desde la ronda cubierta situada en la planta anterior, tuvo que situarse inevitablemente, como culminación lógica en esta clase de construcciones militares, una ronda descubierta, almenada, con finalidad tanto ofensiva -fundamentalmente, posibilitar el lanzamiento de proyectiles y armas arrojadizas de mayor calibre que las flechas-, como de vigilancia, ya que estaría dotada de algún tipo de dispositivo para la realización de señales -un hogar, para hace un fuego y señales de humo, o bien un bastidor de madera forrado de metal pulimentado, a fin de generar señales mediante el reflejo de los rayos solares.

Estos sitemas de señales son los típicos en la Alta Edad Media, y sirven para explicar la profusión de torres y atalayas, situadas en enclaves estratégicos y que posibilitaban una alarma eficaz en caso de peligro.

Planta hipotética de la ronda almenada.

Ronda cubierta

Por encima de la planta principal, de uso preferentemente habitacional -función esta necesaria, y muy probable, habida cuenta la inseguridad de la época, con frecuentes ataques por parte de los piratas daneses, y la inmediatez al palacio de Alfonso III-, se tuvo que situar la parte propiamente militar de la edificación, constituida, muy posiblemente, por una ronda cubierta, de finalidad defensiva, provista de numerosas saeteras, y que, además, tuvo que servir para almacenar los numerosos pertrechos consultanciales a la finalidad militar de la edificación.

El posible hecho de servir de almacén de pólvora desde época moderna, pudo ser la causa de la destrucción de esta planta y la ronda almenada situada sobre ella, en la explosión fortuita ocurrida en el s. XVIII, ya que la misma no aparece en las fotografías conservadas de la fortaleza, de finales del s. XIX.

Planta hipotética de la ronda cubierta.