Santa María de Naranco

La referencia geométrica de trazado de un edificio, implica la determinación del sistema geométrico de trazado que determinará la silueta del mismo, de modo que a partir de una figura sencilla, y conmensurabe (directamente medible), y aplicando una determinada pauta de trazado geométrico, se obtengan la planta y alzados del mismo en función de un principio geométrico superior, tal que cumpla las reglas de la «Euritmía» (ritmo), y de la «Armonía» (belleza) que toda construcción monumental ha de poseer.

El análisis compositivo de un edificio, implica la determinación de la relaciones geométricas, proporcionales, y numéricas entre sus partes, de modo que se pueda llegar a establecer cuáles fueron los planteamientos de su diseño, por parte del maestro arquitecto que lo construyó. Para su determinación, es necesario tanto el conocimiento de los tratados y trabajos sobre Geometría de los autores antiguos, vigentes en la época de construcción de estos monumentos, como la elaboración de una metodología gráfica de análisis aplicable a las planimetrías de los mismos, que permita la determinación objetiva, tanto de las relaciones proporcionales existentes entre sus partes, como de la unidad metrológica aplicada. Es obligado decir que, cualquier método elaborado con este fin, desde nuestra óptica actual, no deja de constituir una extrapolación, con el consiguiente riesgo, y limitación en las conclusiones obtenidas.

El análisis metrológico implica la determinación de la unidad de medida utilizada en la construcción del edificio, ya que ésta constituye el necesario vehículo para trasladar, sobre el terreno, el proyecto geométrico-proporcional elaborado por el maestro arquitecto. Para su determinación, es necesario, el cotejo de las medidas del edificio real, con las teóricamente utilizables por el constructor, que, en nuestro caso, pertenecen inequívocamente al sistema romano, del que existen, no obstante, múltiples variantes, lo que dificulta el trabajo de identificación.

El concepto común, que permite la creación de una metodología gráfica común para la determinación de ambos aspectos es el denominado "módulo", o unidad proporcional del edificio (pósotes), expresivo, además, de un patrón de medida, aplicable para la traslación al terreno del proyecto del maestro arquitecto.La metodología que, a nuestro juicio, permitirá su determinación consiste en el establecimiento de una cuadrícula, o malla reticular, generada a partir de formas geométricas sencillas, que se aplica a la planimetría del edificio mediante sucesivas subdivisiones del patrón geométrico generador de la misma, hasta ajustarla a las zonas definidas en el proyecto compositivo-proporcional del mismo, y que fue utilizada, por primera vez, por D. Vicente Lampérez y Romea (LAMPÉREZ, 1999), En el caso de Santa María de Naranco, y, a partir de 1993 (BORGE et alii, 1993), por nosotros, en la elaboración de una hipótesis de análisis compositivo de la iglesia de San Pedro de Nora (Las Regueras, Asturias)

Referencia Geométrica de Trazado

Dentro de los sistemas de referencia estético-geométricos de traza detectados en la arquitectura monumental del Reino de Asturias, se puede constatarse en el edificio de Naranco la utilización de la denominada Proporción Áurea, como expondremos a continuación.

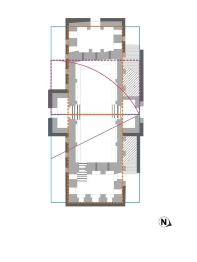
Deducción de la planta a través de la referencia geométrica de trazado. Deducción de la planta: yuxtaposición de rectángulos áureos.

Partiendo de la dimensión global de la planta -un doble cuadrado de dimensión conmensurable de 30 pies de lado-, se determinan sendos rectángulos áureos, obtenidos mediante proyección de las semidiagonales de los cuadrados. Éstos, rotados 90º determinan -mediante el redondeo de su lado menor a una dimensión racional (18 pies)- la anchura del cuerpo central del edificio, reservándose los 12 pies restantes para os respectivos cuerpos laterales al norte (escaleras) y al sur (balcón) del mismo.

Deducción del alzado a través de la referencia geométrica de trazado. Deducción del alzado: rectángulo áureo.

Igualmente, la proyección en vertical del cuadrado inicial de 30 pies, repitiéndose el trazado del mismo rectángulo áureo ya mencionado para la planta, sirve para determinar el alzado total del citado cuerpo central del edificio, equivalente al alzado máximo del mismo.

Análisis compositivo

Análisis compositivo-proporcional en planta. Análisis compositivo-proporcional en planta.

Aplicando el mencionado método gráfico al edificio, se deduce que éste se habría diseñado, en planta, a partir de un doble cuadrado de lado l = 10 m, que definiría un rectángulo ABCD, de 20 m de longitud por 10 m de anchura totales. A partir de dicho trazado básico, se realiza una distribución proporcional tripartita, cuya razón proporcional numérica es también 3, y que se repite tanto en longitud (4 módulos de longitud para los miradores E y O, y 4 x 3 = 12 módulos para el salón central), como en anchura (2 módulos de longitud para los anexos N y S, y 2 x 3 = 6 módulos para el cuerpo central del edificio).

Análisis compositivo-proporcional en alzado. Análisis compositivo-proporcional en alzado.

En cuanto al diseño compositivo del alzado, éste viene determinado por la división tripartita, antes mencionada, de la anchura del edificio, ya que sigue la proporción definida por el cuadrado de lado l = 10 m, que define la altura del cuerpo central del edificio, repitiéndose en la misma idéntica distribución proporcional tripartita a la de la planta (5 veces 1/2 módulos para la altura del piso terreno, y 3 x 5 veces dicha magnitud para la altura del piso principal), subordinándose los pórticos laterales al alzado del central, lo que varía, en consecuencia, su sistema de proporciones (5 veces 1/2 módulos para el pórtico bajo, y 2 x 5 veces dicha magnitud para el pórtico alto).

Análisis metrológico

Partiendo de la premisa del carácter romano de la unidad métrica utilizada, resulta, sin embargo, muy problemático, concretar la misma, habida cuenta la diversidad de variantes existentes, que se multiplicaron, además, en la Alta Edad Media, debido a la ausencia de un marco administrativo unificador de referencia.

Mediante análisis estadísticos aplicados a las medidas más significativas del edificio, Lorenzo Arias (ARIAS PÁRAMO, 2008), ha deducido el uso en este edificio del conocido como "Pie Drusiano" (1 pie drusiano = 0.33 m), lo que, en principio, resultaría aceptable, habida cuenta la relativa exactitud de las medidas del edificio en su correspondencia en metros (y que 1 m = 3 x 3 pies drusianos de 0.33 m).

Por nuestra parte, en función de la metodología propia (BORGE CORDOVILLA, 1999), elaborada para el análisis compositivo y metrológico de la iglesia de San Salvador de Priesca (Villaviciosa, Asturias), obtenemos los siguientes resultados en su aplicación a Naranco:

Dimensiones generales.
METROSPASSVSGRADVSPALMIPESPES
LONGITUD TOTAL20,0012,0024,0048,0060,01
ANCHO TOTAL10,006,0012,0024,0030,00
Dimensiones del edificio: longitud.
METROSMÓDULO1/2 MÓD.1/4 MÓD.PASSVSGRADVSPALMIPESPES
SALA CENTRAL12,0012,0024,0048,007,2014,4028,8036,00
MIRADORES4,004,008,0016,002,404,809,6012,00
PÓRTICO (lado N)4,004,008,0016,002,404,809,6012,00
BALCÓN (lado S)4,504,509,0018,002,705,4010,8013,50
Dimensiones del edificio: anchura.
METROSMÓDULO1/2 MÓD.1/4 MÓD.PASSVSGRADVSPALMIPESPES
ANCHO CUERPO CENTRAL6,006,0012,0024,003,607,2014,4018,00
ANCHO PÓRTICOS (N y S)2,002,004,008,001,202,404,806,00
Dimensiones del edificio: altura.
METROSMÓDULO1/2 MÓD.1/4 MÓD.PASSVSGRADVSPALMIPESPES
ALTURA CUERPO CENTRAL10,0010,0020,0040,006,0012,0024,0030,00
ALTO PÓRTICOS (N y S)7,507,5015,0030,004,509,0018,0022,50
Equivalencia de medidas con el sistema romano (pie "drusiano").
MEDIDAEQUIVALENCIASEn m
DECEMPEDA13,33
PASSVS211,67
GRADVS4210,83
CVBITVS6,673,341,6710,50
PALMIPES8421,210,42
PES1052,51,51,2510,33
SEMIS2010532,5210,17